FINALE
IMPECCABILE
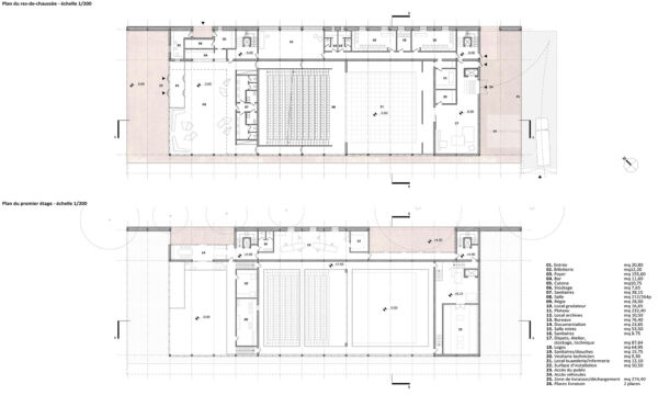
Pavillon de la Dance
Ginevra - CH
Il progetto diventa una continuazione dello spazio urbano esistente integrandosi con l’ambiente e risolvendo la complessità dell’area in cui è inserito. La volumetria dell’edificio è perfettamente coerente con la scala urbana circostante; abbiamo rispettato la rigida maglia dei lotti Sud-Ovest, proponendo queste misure nella dimensione della sala e nella riprogettazione della piazza con materiali naturali e specie arboree autoctone. L’area ha acquisito una nuova identità e conclude armoniosamente il tessuto urbano.
| TEAM DI PROGETTO | Wisp Architects Arch. Andrea Arlanch |
| TIPOLOGIA | Accommodation – Competition |
| ANNO | 2013 |
| DIMENSIONE | 2'300 m² |
| FASI | Concept Design |
| PLUS DEL PROGETTO | The volumetry of the building is perfectly coherent with the surrounding urban scale |
| RENDER | WOLF-VA |






