FLAWLESS
RESULT
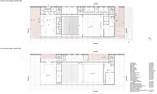
Pavillon de la Dance
Geneva - CH
The project becomes a continuation of the existing urban space, integrating with the environment and resolving the complexity of the area in which it is inserted. The volumetry of the building is perfectly coherent with the surrounding urban scale; we have respected the rigid grid of the South-West lots, proposing these measures in the size of the hall and in the redesign of the square with natural materials and autochthonous tree species. The area has acquired a new identity, completing harmoniously the urban context.
| PROJECT TEAM | Wisp Architects Arch. Andrea Arlanch |
| TYPOLOGY | Accommodation – Competition |
| YEAR | 2013 |
| DIMENSION | 2'300 m² |
| PHASES | Concept Design |
| PROJECTS’ STRONG POINT | The volumetry of the building is perfectly coherent with the surrounding urban scale |
| RENDER | WOLF-VA |






